Mike and Gay Franckowiak Home
Beaver Island Michigan

Proposed Addition & Remodel - 11/08/01

[Home] [Latest Drawings] [Animations] [Floor Plans] [Elevations] [Model]

Updated 11.08
PDF PLANS & ELEVATIONS

Updated 11-08-01 Revised Floor Plans and Elevations: 11 x 17 Drawings
(PDF Version 1600 KB - See Note Below if you have any problems viewing)

Updated 11-08-01 Revised Floor Plans and Elevations: 24 x 36 Drawings
(PDF Version 1100 KB - See Note Below if you have any problems viewing)

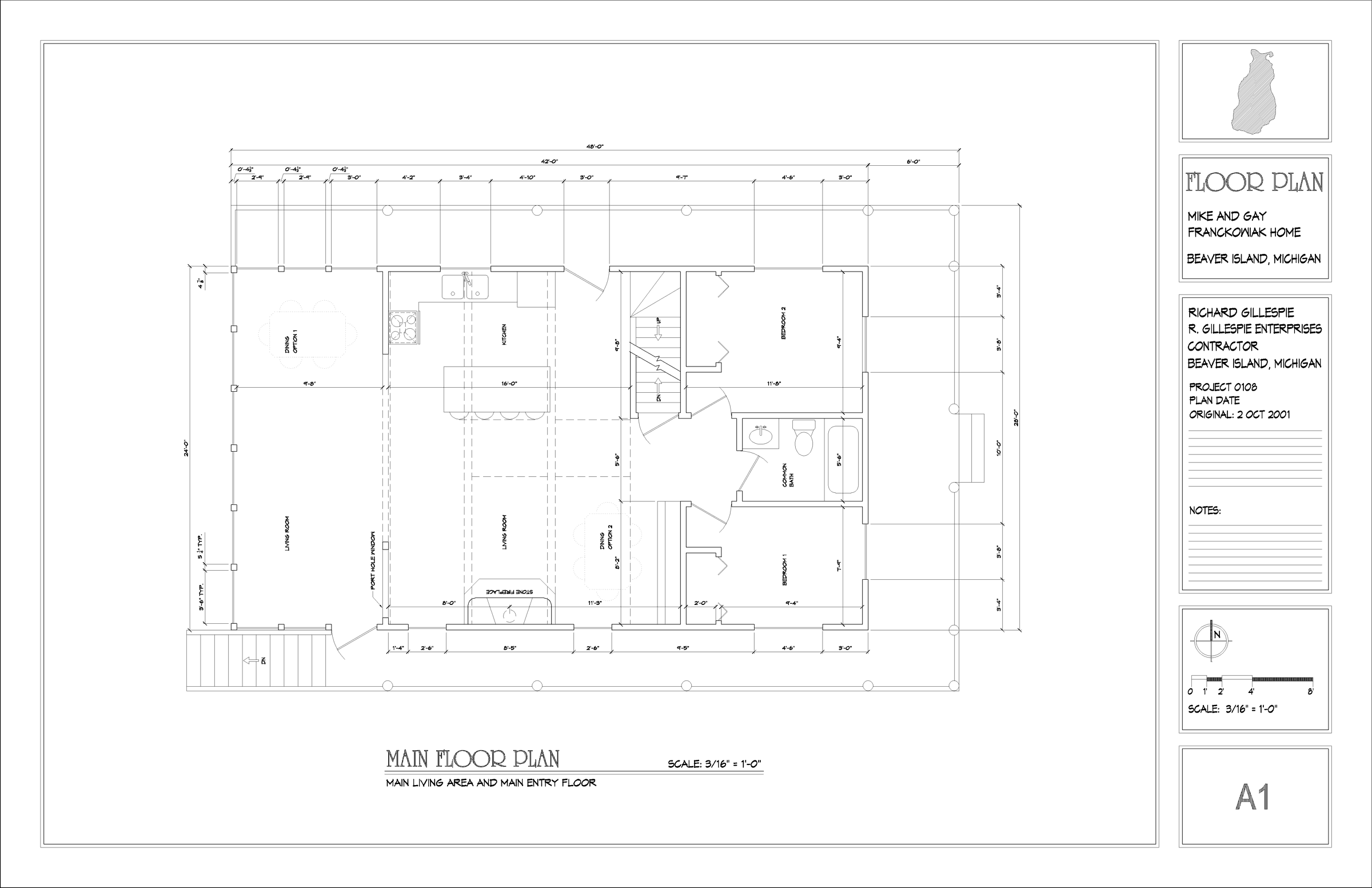
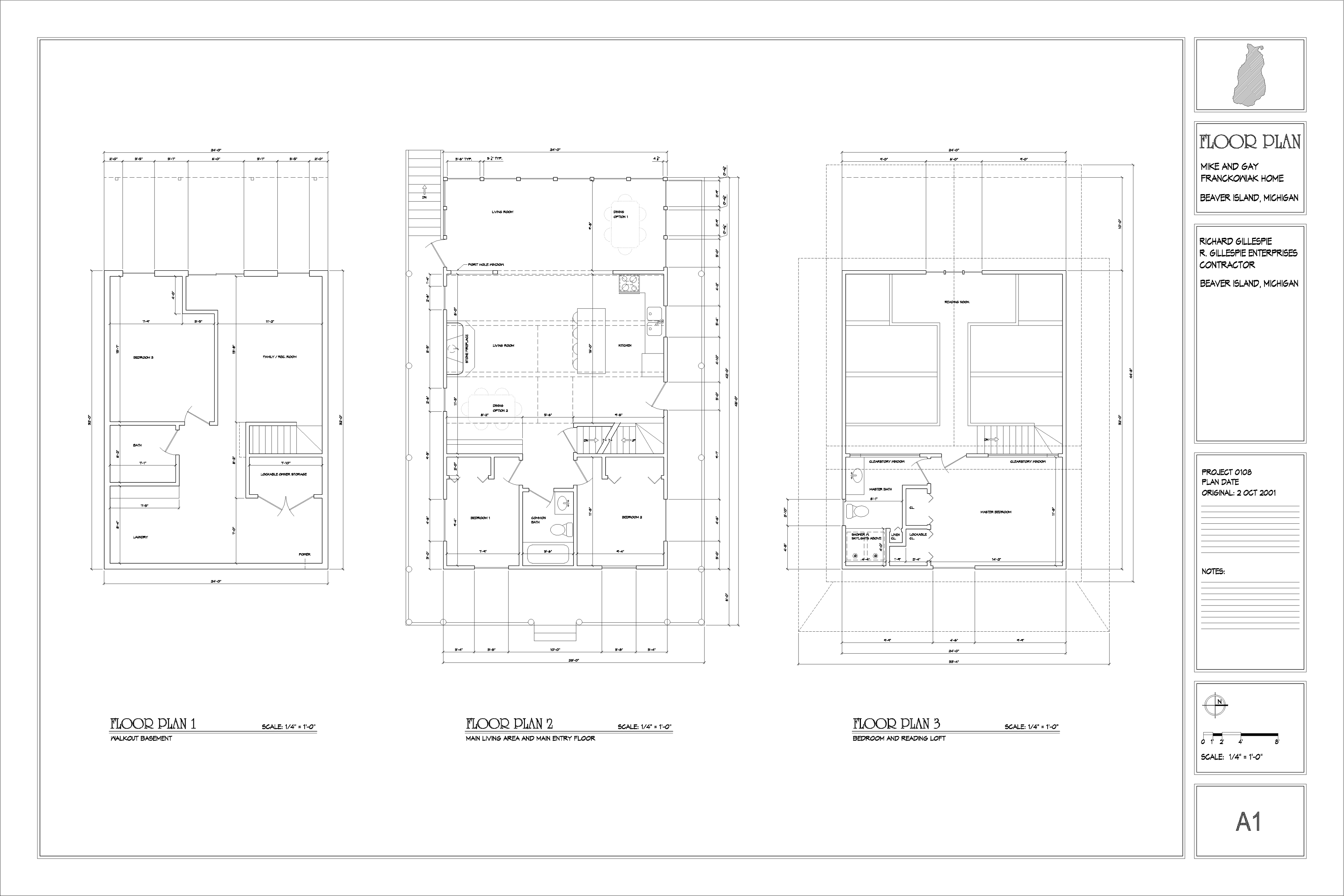
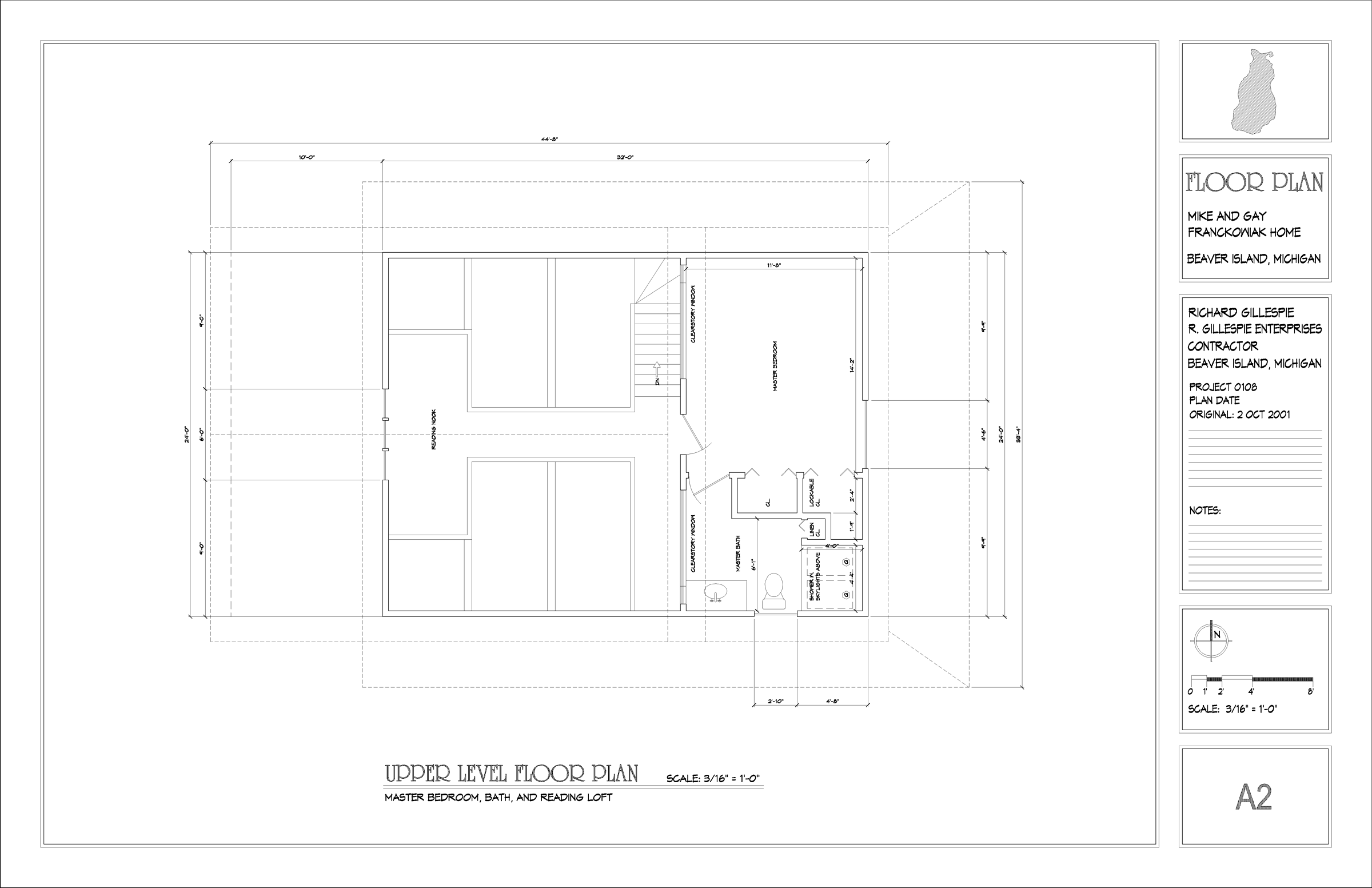
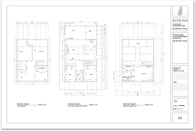
click image for a full size view

click image for a full size view

click image for a full size view

click image for a full size view

click image for a full size view

click image for a full size view

click image for a full size view

click image for a full size view

click image for a full size view

click image for a full size view

click image for a full size view

click image for a full size view

For Printing, the Acrobat PDF Files work best with an 11 x 17 printer.

Updated 11-08-01 Revised Floor Plans and Elevations: 11 x 17 Drawings
(PDF Version 1600 KB - See Note Below if you have any problems viewing)

Updated 11-08-01 Revised Floor Plans and Elevations: 24 x 36 Drawings
(PDF Version 1100 KB - See Note Below if you have any problems viewing)

To View the PDF Files, you need the Adobe Acrobat Reader version 4.0 or above (the free versions works just fine.).  The PDF Files are fairly large (around 1 - 1.5 MB) so if you are not using a broadband connection it may take a minute. If they appear to hang, you may find it more conveninent to Right Click -> SaveAs and then save the PDF file to your local disk and open it from there.

[Home] [Latest Drawings] [Animations] [Floor Plans] [Elevations] [Model]